静岡県沼津市町方町27-1 物件詳細
静岡県沼津市町方町27-1(2F)
追加
| 所在地 | 静岡県沼津市町方町27-1 | ||
|---|---|---|---|
| 交通 |
東海道本線 沼津/徒歩10分 |
||
| 賃料 | 14.3万円 | 管理費等 | - |
| 敷金 | 3ヶ月 | 礼金 | - |
| 敷引/償却金 | - | 保証金 | - |
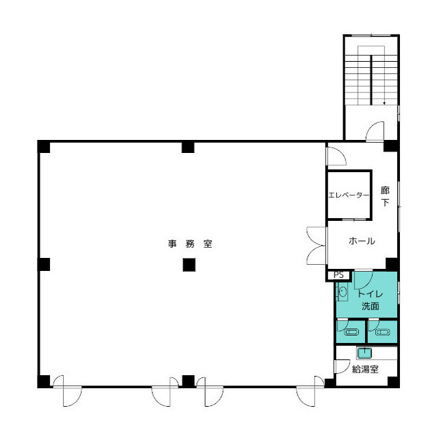
| 坪数 | 42.7坪 | 専有面積 | 141.32m2 |
| 築年月 | 1990年03月 | 階 / 向き | 2階 |
| 階建 | 6階建 | 建物種別 | 住宅付店舗(一戸建) |
| 駐車場 | なし | ||||
|---|---|---|---|---|---|
| 保証人代行 | 任意:管理会社提携の保証会社 保証会社加入任意 | ||||
| 契約期間 | 普通 2年 | ||||
| 損保 | 要 | 入居可能日 | 即入居可 | ||
| 構造 | 鉄骨造 | 総戸数 | 6戸 | ||
| 設備・こだわり |
|
||||
| リフォーム | - | ||||
| リノベーション | - | ||||
| その他費用 |
|
||||
| その他賃料 |
|
||||
| 備考 | - | ||||
| 問合せNO | 553186-3326631 | 取扱店舗 | 株式会社沼津駅前賃貸センター 駅南本店 | ||
取引態様:一般媒介 情報掲載日:2025年07月07日 次回更新予定日:2025年07月21日
沼津市立第一小学校(593m)
沼津市立第一中学校(1316m)
認定こども園中央幼稚園(456m)- 静岡県立沼津西高校(1328m)
- 沼津市役所(801m)
- 沼津駅前郵便局(438m)
- 沼津市立図書館(917m)
- 沼津警察署(1420m)
- 狩野川緑地(611m)
- 医療法人社団真養会田沢医院(549m)
- 静岡中央銀行本店営業部(256m)
- しずてつストア沼津駅前店(562m)
- セブンイレブン沼津大手町4丁目店(181m)
- ココカラファイン沼津駅前店(754m)
- コスモスベリーズテレビのイマイ(179m)
- 私立東都大学沼津キャンパス(1831m)
- ゲオ沼津学園通り店(2303m)
- ドトールコーヒーショップ沼津ラクーン店(644m)
- 沼津ラクーン(643m)
情報提供会社



